Theix-Noyalo – Bâtiment tertiaire

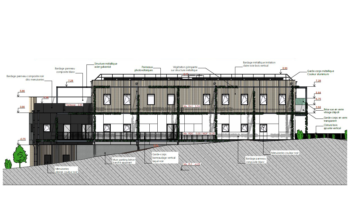
façade Est

façade Sud

façade Ouest

façade Nord

Programme

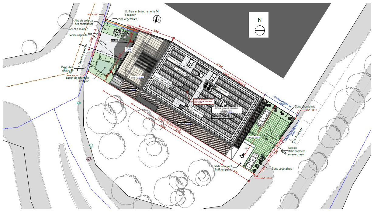
Localisation

Année
Maître d’ouvrage
Budget
Surface
Mission
Phase

Construction d’un bâtiment à usage de bureaux et de commerces, comprenant 2 cellules commerciales et 3 cellules à usage de bureaux, garage…
Theix-Noyalo, Morbihan
2024
Privé
N.C.
834 m² de surface de plancher
Complète
DCE (Dossier de consultation des entreprises)

Programme





Localisation

Année
Maître d’ouvrage
Budget
Surface

Mission
Phase

Construction d’un bâtiment à usage de bureaux et de commerces, comprenant 2 cellules commerciales et 3 cellules à usage de bureaux, garage…
Theix-Noyalo, Morbihan
2024
Privé
N.C.
834 m² de surface de plancher
Complète
DCE (Dossier de consultation des entreprises)