Irodouër – Pharmacie

façade Ouest

façade Nord

façade Sud

façade Est

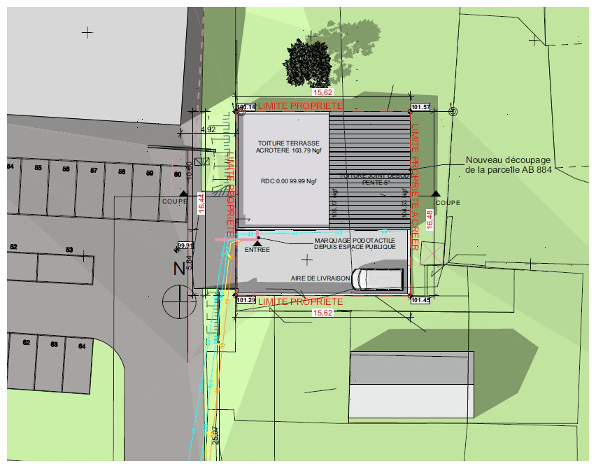
Plan de masse

Programme
Localisation
Année
Maître d’ouvrage
Budget
Surface
Mission
Phase

Construction d’une pharmacie
Irodouër, Ille-et-Vilaine
2025
Privé
N.C.
143 m² de surface de plancher
Complète
Démarrage de chantier

Programme

Localisation

Année
Maître d’ouvrage
Budget
Surface

Mission
Phase

Construction d’une pharmacie
Irodouër, Ille-et-Vilaine
2025
Privé
N.C.
143 m² de surface de plancher
Complète
Démarrage de chantier