Quiberon – Résidence Villa Castéro


etat pendant les travaux :

Façade Sud

Façade Sud et Est

Façade Nord

Façade Nord et Ouest

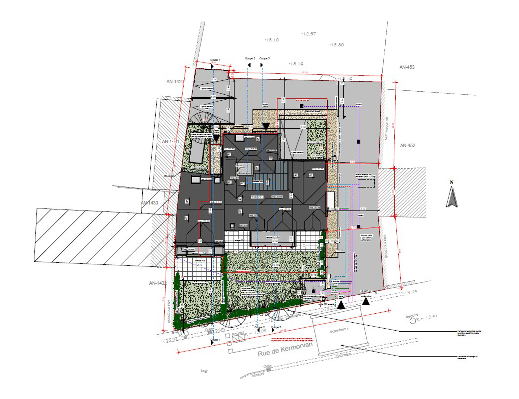
Plan de masse

Programme
Localisation
Année
Maître d’ouvrage
Budget
Surface
Mission
Phase

Construction de 5 logements collectifs
Quiberon, Morbihan
2024
Promobaie
N.C.
423 m² de surface de plancher
Partielle
Chantier

Programme

Localisation

Année
Maître d’ouvrage
Budget
Surface

Mission
Phase

Construction de 5 logements collectifs
Quiberon, Morbihan
2024
Promobaie
N.C.
423 m² de surface de plancher
Partielle
Chantier