Pontivy – Rosa Park

façade Sud

façade Nord

façade Ouest

façade Est

façade Nord et Ouest

façade Est et Sud

façade Est et Ouest

façade Est et Ouest

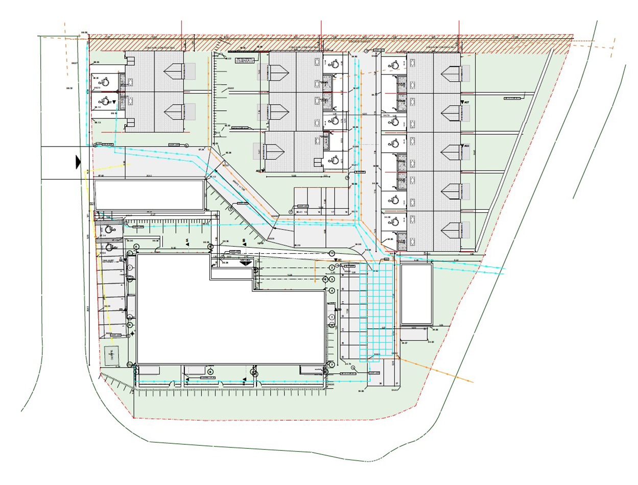
Plan de masse


etat pendant les travaux :

Programme
Localisation
Année
Maître d’ouvrage
Budget
Surface
Mission
Phase

Construction de 29 logements collectifs et 10 maisons individuelles groupées
Pontivy, Morbihan
2023
Nexity
N.C.
2 998 m² de surface de plancher
Partielle
Livrée

Programme



Localisation
Année
Maître d’ouvrage
Budget
Surface

Mission
Phase

Construction de 29 logements collectifs et 10 maisons individuelles groupées
Pontivy, Morbihan
2023
Nexity
N.C.
2 998 m² de surface de plancher
Partielle
Livrée