Clohars-Carnoët – Villa Laïta


etat pendant les travaux :

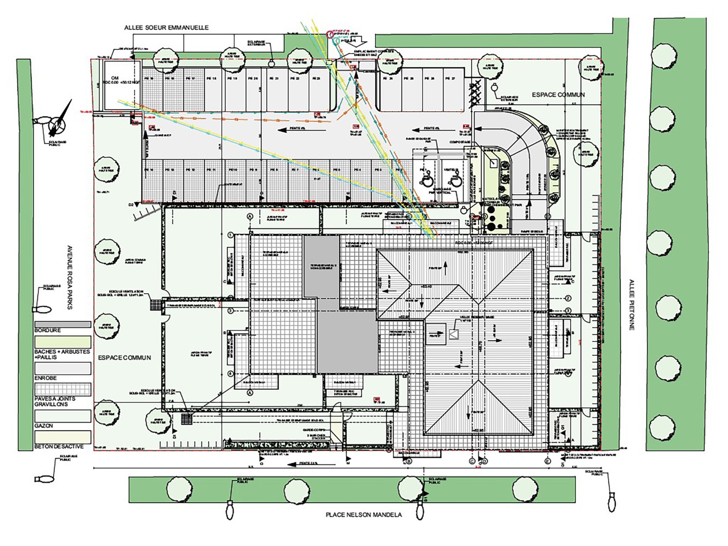
Programme
Localisation
Année
Maître d’ouvrage
Budget
Surface
Mission
Phase

Construction de 24 logements collectifs et 2 locaux professionnels
Clohars-Carnoët, Finistère
2023
Acp Immo
N.C.
1 845 m² de surface de plancher
Partielle
Livrée

Programme


Localisation
Année
Maître d’ouvrage
Budget
Surface

Mission
Phase

Construction de 24 logements collectifs et 2 locaux professionnels
Clohars-Carnoët, Finistère
2023
Acp Immo
N.C.
1 845 m² de surface de plancher
Partielle
Livrée